
新发突发传染病疫情是公共卫生突发事件常见类型,近年来在全球范围内频频发生,严重威胁着人类生命。疫情处置过程中,医学实验室在疾病诊断、治疗、疗效评估、预后判断等环节发挥了重要作用,为疫情防控和病患救治赢得了时间。北京佑安医院作为北京市新型冠状病毒肺炎定点收治医院,在新型冠状病毒疫情防治期间,快速高效组建应急实验室并开展常规检验和病原学病毒核酸检测,为临床诊疗和病患救治提供了及时有效的实验室证据。本文通过阐述北京佑安医院应急实验室建设过程,就如何高效组建独立传染病疫情应急实验室,加强与疾病预防控制中心合作,实现平时常备常练和物尽其用,疫情时迅速高质量应对处置等方面,分享建设过程中获得的启示,为传染病医院新发突发传染病应急实验室能力建设提供思路和参考。
版权归中华医学会所有。
未经授权,不得转载、摘编本刊文章,不得使用本刊的版式设计。
除非特别声明,本刊刊出的所有文章不代表中华医学会和本刊编委会的观点。
传染病疫情是公共卫生突发事件的常见类型,牵动国家民生。医疗机构在疫情中担负着医疗救护和现场救援的重要任务[1]。新型冠状病毒疫情期间,医疗机构不仅在医疗救护中担当重任,而且在流行病学调查和科研攻关方面表现突出。在此过程中,医学实验室尤其是传染病医院实验室已成为发现、鉴定突发传染病的前沿阵地,其快速响应、检测能力不仅反映医院的实力和水平,同时也在一定程度上影响抗击疫情的进程和效果。2020年4月19日,国家卫生健康委医政医管局下发《关于进一步做好疫情期间新冠病毒检测有关工作的通知》,通知要求各级实验室应“进一步加强实验室建设,提高检测能力”[2]。大批应急实验室通过验收投入使用,检测能力得到空前发展。但是,应急实验室如何建设和管理才能实现“平时”和“战时”功能转换结合,发挥实验室效能最大化,仍是需要研究的课题。
理想状态的应急实验室能满足不同生物安全防护级别要求,一是具有独立的物理空间,既可以是独立实验室,也可以是常规实验室中实现物理隔离的独立单元;二是具备完善的检测功能,可独立开展传染病相关诊断、病情判断和预后评估试验,及相关科学研究;三是具有单一流向的人流、物流和气流,能最大限度保障生物安全、减少院内感染的发生。
1. 早期临时组建应急实验室及存在的问题:2020年1月19日,在北京市卫生健康委的指示下,医院迅速启动新型冠状病毒疫情应急预案,成立以院长为组长的疫情应急管理小组。临床检验中心按照《2019 新型冠状病毒肺炎临床实验室检测的生物安全防护指南》[3]有关建议,于1月21日开始筹建新型冠状病毒检测实验室,借鉴2003年“非典”时期应急实验室的建设经验,在收治病房内部由病房改造成专用实验室。从各专业组紧急调配仪器设备和防护物资,同时组织和培训一线人员进行生物安全和防护场景演练,1月22日实验室通过专家组现场考核验收并正式运行,可开展常规临检、生化、凝血、感染相关指标及流感核酸等64项检测。1月30日,开展新型冠状病毒核酸检测。实验室检测能力基本满足临床需求。但是,在实验室运行过程中也发现和暴露了一些问题:实验室场地为非实验室专业用地,增加用电、用水、废弃物处理难度;仪器设备多为专业组闲置或备用仪器,老化、搬动等因素导致故障率高,既增加了工作难度,又影响检测效率;该实验室为临时实验室,疫情结束后所在地点需恢复成普通病房,应急实验室将面临着解散,其建设归为零。
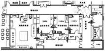
2.高质量、高标准建设应急实验室:核心组意识到高质量、高标准建设应急实验室的必要性和重要性,经过多方论证,在医院的支持下,建立了“双向型”应急实验室。该实验室地理位置独立于常规实验室,设置于感染病房大楼二层,为具有负压系统的加强型二级生物安全实验室,具备操作按乙类或以下级别管理微生物的实验室条件,由一个分子实验室和一个专用临检实验室组成(图1),其中分子实验室可开展病原体的核酸检测,专用临检实验室可开展血、尿、便、生化、免疫、凝血等项目检测。“双向”是指该实验室能实现“平时”和“战时”功能转换。平时情况下,临检实验室即为急诊实验室,为全院急诊检测服务;分子实验室用于科研和呼吸道病原体核酸检测(区别于设置在临床检验中心内的另一个用于肝炎病毒相关检测的分子实验室);疫情情况下,该实验室作为专用实验室,用于疫情相关的核酸和常规项目检测,而平时状态下的各项检测由相应专业组接替。目前,该实验室已投入使用,运转良好。


在建设标准上,双向型实验室一改“疫情一次性”的观念,高标准建设实验室,采用负压通风系统,引进先进的仪器设备,并将及时更新仪器设备;在人员配备上,采用“专”“技”结合模式,即有固定的高级专业人员严把质量关,又有技术人员负责完成实验操作,以确保实验结果的准确性。
生物安全防护是传染病疫情中预防医院内感染的重中之重,而生物安全防护意识则是医护人员做好生物安全工作的前提和保障。意识淡薄往往是导致工作疏忽的重要原因。只有提高了生物安全防护意识,才能在诊疗活动中时刻关注生物安全危害,规范生物安全操作。《新型冠状病毒肺炎防控方案(第七 版)》[4]要求各级医疗卫生机构应加强专业人员培训,增强实验室检测能力及生物安全防护意识。在疫情中,通过以“知”促“识”,以“练”促“识”。一方面通过建立常态化培训机制,加强传染病相关知识,特别是及时跟进更新新型冠状病毒肺炎相关知识,并通过讲座、网上学习、及时考核等方式引导学习和掌握重点知识。通过学习深入了解传染病病原和防控相关知识,提高防护意识;另一方面,仅学习理论知识还不够,为防止纸上谈兵造成的危害,每位进入一线工作人员需进行生物安全相关的场景演练。
基于以往疫情经验,将应急实验室人员、知识技能、生物安全以及医疗防护物质的储备作为常规工作进行落实,是经济有效的管理模式。
1.人力资源储备:人员是发挥应急检测能动性的主体。疫情来临时,人力资源是否充足、是否能胜任检测工作是关键。疫情初期曾面临分子核酸检测人员短缺情况,笔者科室全体动员进行临床基因扩增检验实验室规范化培训,考核合格后上岗。疫情后期,采取轮转的形式,分子实验室除技术骨干外,其他岗位执行轮转制度,由其他各专业组满足条件的人员定期轮岗,并进行培训和考核;以保证疫情期间有足够的人员梯队完成核酸检测任务。
2.物资储备:应急实验室物资储备包括实验室运转所需的试剂耗材和医用防护物资的储备。一般多数实验室具有一定的试剂耗材储备,能够满足疫情来临时的应急使用;而储备的医用防护物资多为二级实验室防护用品,如医用手套、口罩和帽子以及普通消杀用品等,往往三级实验室防护需要的一次性防护服、隔离衣和仪器环境消杀用品明显储备不足。为避免出现类似的情况,平时应做好各级防护物资,特别是三级实验室防护物资储备,一次性防护服、隔离衣、面罩(屏)等至少满足10人7 d的用量,且需定期检查、及时更新。疫情来临时,严格按照分级防护的规定,在不同的区域根据暴露危险度使用相应的防护用品,避免由于过度防护造成医疗物资无谓浪费。
3.定期开展预案演练:具备完善的传染病相关基本理论、基础知识和基本技能是完成抗疫任务的前提,但在疫情不同防护级别的需求情况下,基本知识储备不一定能发挥到良好的效果,特别是应急处置流程和防护用品的正确使用等方面,只有反复多次的操作演练学习才能真正掌握。因此,针对应急流程和生物安全防护制定规范化操作文件,定期开展应急演练尤为重要。日常工作中,针对实验室溢撒、职业暴露等的演练已常态化,工作人员具有很强的生物安全防护意识和实战能力。疫情来临时,临床检验中心制定了以样本为中心,标本转运、接收、预处理、检测中以及检测后废弃物处理的全流程程序文件[5],并有针对性地进行了场景演练。例如,标本运送操作流程对标本转运人员防护要求、标本取送时间、标本类型、标本转运路线、人员排班及联系方式进行详细描述;场景演练时,工作人员将来自于患者的血、尿、便、痰等标本用双层密封袋装好,外包装消毒后放入密闭无渗漏的转运筒,再放入A类生物安全标本运送箱中,通过指定标本运送路径送至应急实验室,并由实验室专人签收,做好签收记录;检测后标本,均被视为具有传染性样本对待,一律集中放入专用黄色垃圾袋内,双层包装,扎好袋口,做好标记,压力蒸汽灭菌后按医疗废物处理。
疫情期间,三级实验室生物安全防护增加了工作难度,同时病原体核酸、血清学抗体检测等新的检测项目加入到检测体系中,对全面的质量保证提出了新的挑战。
1.多部门通力合作保障质量:疫情期间,多机构、多部门协作共同抗击疫情取得良好成效。在医疗机构内部,由医务处牵头,多部门参与,通过场景式演练、采用对讲机、内线电话和实验室专用微信及时沟通的方式,加强标本采集、运送环节的安全操作和无缝衔接,保障标本采集后能及时被运送。
2.加强实验室质量控制:新的传染病疫情中病原体检测是临床诊断的关键证据之一,往往这些新开展的病原学项目没有商品化的室内质控品。为保证实验室质量,监测试验的有效性,实验室需要通过自制室内质控品,在完成每天日常检测时平行检测质控品,室内质控合格方能发放报告。通过参加省级及以上疾病预防控制中心或质量控制中心主持的时间质量评价活动,保证检测的准确性。
近年来,世界范围内新发突发传染病呈增加趋势。在疫情响应过程中,疾病预防控制中心和医疗机构各有所长。前者是鉴定和溯源传染源的主战场,为疫情防控提供宏观决策建议[6, 7],而医疗机构尤其传染病医院是新发、突发传染病发现和诊断的桥头堡。但是,疾病预防控制中心直接接触新发突发传染病源的渠道有限,且机构数量和检测能力有限。医疗机构缺乏公共卫生防控的敏锐性和专业性。因此,宜打破两个机构之间的壁垒,加强沟通合作,特别是建立内部沟通机制,在疫情苗头出现之后,疫情报告之前的“是与不是”之间建立一条可行、可信的内部沟通机制。在抗击疫情的过程中,加强疫情防控动态对接和科研合作,为尽早研究发病机制、开发疫苗和战胜疫情提供有力保障。疫情期间,在医院医务科的统一领导下,笔者所在医院临检中心与北京市疾病预防控制中心实验室直接对接,进行实验室核酸检测指导以及科研合作。这些工作为今后新发突发传染病识别、鉴定和科研方面长期合作开辟了新的途径。
传染病医院应急实验室建设是(特)重大疫情情况下,公共卫生服务与医疗系统有效衔接的重要环节,不仅可以有效补充公共卫生系统实验室检测能力有限的问题,亦可为新发突发传染病的救治提供及时、快速、准确的诊断、疗效观察和预后判断的有效证据。经过疫情的实践,笔者亦发现一些有待改进的情况。
1.实验室空间布局和流程有待进一步完善:多数医疗机构,特别是非传染病专科医院,没有设立专用传染病突发疫情应急实验室。疫情来临时,一般都是以原有实验室各专业为主体,根据疫情需求在现有工作基础上增加检测项目。如流感流行时,疫情相关检测任务由分子、临检和生化实验室完成,其他各专业基本不受影响。本次新型冠状病毒疫情重大,传播方式复杂,传播速度快,造成院内感染的破坏力极强,原则上要求启用独立实验室完成检测任务,便于分级管理和生物安全保障。因此,部分检测机构在原有实验室基础上改造,或是建设方舱应急实验室。由于实验室空间有限,或受现有建筑格局的限制,且组建仓促,人流、物流不能完全实现分流和单一流向是普遍存在的问题。为避免人、物交叉感染,可通过以下相应措施予以防控:(1)要求工作人员严格执行三级实验室防护制度和废弃物消杀处理制度;(2)在工作流程上加以规范,所有样本须在外包装完好、完整的情况下,经由洁净走廊转运至实验室内部之后,在生物安全柜内方能打开外包装,且针对需开盖操作的标本,要求必须先进行灭活处理后才能进行相应操作。
2.需进一步探索、优化特殊工作环境下的质量管理:应急实验室为负压实验室,部分实验室的分子扩增室的负压达到-30 Pa。负压和三级实验室防护的工作环境,对工作人员心理和身体均是极大的挑战。在此情况下,如何将常规条件下的质量管理体系贯彻其中,对实验室管理来说是个新课题。
3.加强学习,增进对疫情的预估和把控力:由于缺乏应对疫情的经验,在疫情初期曾一度出现人员、物资和设备储备短缺的情况,随着疫情的进展和需求的增多,检测项目增加,各种检测平台逐步搭建,已初步形成一套完整的应对突发传染病疫情的应急实验室工作体系,但是人员、设备和物资储备方案仍需进一步细化,针对不同传播类型疫情的应急预案有待进一步完善,应急实验室的检测能力和科研能力仍需进一步拓展和加强。
所有作者均声明不存在利益冲突





















